Ningbo Hongjia CNC Technology Co., Ltd. Lar / Produtos / Série de máquinas de transformação, moagem e perfuração comum / X6132 Máquina de fresamento de elevação universal

X6132 Máquina de fresamento de elevação universal

Introdução e uso do produto
Esta máquina -ferramenta é uma espécie de máquinas -ferramentas de corte de metal forte, a máquina -ferramenta tem forte rigidez, uma ampla faixa de velocidade de alimentação e pode suportar chips de carga pesada. O orifício do cone do eixo pode ser instalado diretamente ou através dos acessórios de vários cortadores de moagem cilíndrica, cortadores de fresagem circular, cortadores de formação, cortadores de fresagem e outras ferramentas, adequadas para processamento de várias partes da manutenção de planos, manobras, automóveis, automóveis, etc., etc.

+ Contate-nos
  • X6132 Máquina de fresamento de elevação universal

Informações de produção

Principais características estruturais
1, a base, a fuselagem, a bancada, a lâmina, a lâmina de elevação e outros componentes principais são fundidos de materiais de alta resistência e tratamento de envelhecimento artificial, para garantir a estabilidade a longo prazo da máquina-ferramenta.
2, o mancal do eixo principal da máquina -ferramenta é um rolamento cônico, o eixo principal adota três estruturas de suporte, a rigidez do sistema do eixo principal é boa, a capacidade de rolamento é forte e o eixo principal adota a frenagem de consumo de energia, o torque de frenagem é grande e a parada é rápida e confiável.
3, o ângulo de rotação horizontal da tabela ± 45 °, expande a faixa de processamento da máquina -ferramenta. A parte principal de transmissão e a parte da tabela de trabalho adotam a estrutura de transmissão de engrenagens, a faixa de regulação da velocidade é ampla e a mudança de velocidade é conveniente e rápida.
4, a direção da Tabela X/Y/Z possui feed manual, alimentação móvel e avanço móvel três, a velocidade de alimentação pode atender aos diferentes requisitos de processamento; O feed rápido pode fazer com que a peça atinja a posição de processamento rapidamente, o processamento é conveniente e rápido e o tempo de não processamento é reduzido.
5, X, Y, Z Três guia de direção par por Treatamento Ultra-Audio, Tratamento de Regamento de Precisão e Raspa, com lubrificação forçada, Melhore a precisão, prolonga a vida útil da máquina.
6. O dispositivo de lubrificação pode forçar o parafuso longitudinal, horizontal, L e vertical e trilho de guia para lubrificar, reduzir o desgaste da máquina -ferramenta e garantir a operação eficiente da máquina -ferramenta; Ao mesmo tempo, o sistema de resfriamento altera o tamanho do fluxo de líquido de arrefecimento ajustando o bico para atender às diferentes necessidades de processamento.
7, design de máquina -ferramenta de acordo com o princípio ergonômico, fácil de operar; O painel de operação foi projetado com símbolos figurativos, que são simples e intuitivos.

Principais parâmetros técnicos de máquinas -ferramentas

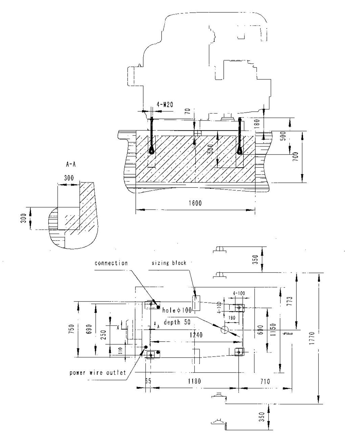
Afunilamento do orifício do eixo principal 7 :24 ISO50
Distância da linha central do fuso até a cama Guia Vertical Rail 30-350 mm
Distância da linha central do eixo até o feixe de suspensão 155 mm
Abertura do fuso 29mm
Ângulo de rotação máxima da tabela ± 45 °
Faixa de velocidade do eixo/série 30 ~ 1500 rpm /18 níveis
Tamanho da tabela 1320x320 mm
Tabela de tabela longitudinal/transversal/vertical 700 (680/255 (240)/320 (300) mm
Faixa de alimentação de tabela longitudinal/transversal/vertical Nível 18 23.5-1180/23.5-1180/8-394 mm/min
Tabela de velocidade em movimento rápido vertical/horizontal/vertical 2300/2300/770 mm/min
Número, largura e espaçamento dos slots em forma de T da bancada de trabalho 3/18/70 mm
Principal principal 7.5kW
Alimente a energia do motor 1.5kW
Dimensões da máquina (L X W X H) 2294x1770x1665 mm
Peso da máquina líquida 2700/3000 kg

Mantenha contato

+ SUBMIT
Ningbo Hongjia CNC Technology Co., Ltd.
Ningbo Hongjia CNC Technology Co., Ltd.
A Ningbo Hongjia CNC Technology Co., Ltd. começou em 2006 e foi criada em 2018. Está localizado no novo distrito de Qianwan, na cidade de Ningbo, na província de Zhejiang, ala sul da zona econômica do Delta do Rio Yangtze. É uma empresa especializada na pesquisa, desenvolvimento, produção e vendas de equipamentos de corte de metal CNC. Como China X6132 Máquina de fresamento de elevação universal supplier and custom X6132 Máquina de fresamento de elevação universal company, Com forte força técnica e rica experiência na indústria, a Hongjia CNC está comprometida em fornecer aos clientes soluções CNC avançadas para atender às necessidades dos clientes em diferentes setores.
Planta e equipamento
  • Aparência de fábrica
  • Aparência de fábrica
  • Equipamento
  • Equipamento
  • Equipamento
  • Equipamento
  • Equipamento
O que é novidade
Conhecimento da indústria

X6132 Máquina de fresamento de elevação universal , como produto da Hongjia CNC, ganhou uma grande reputação em muitos setores por sua poderosa capacidade de corte de metal e ampla aplicabilidade. Esta máquina-ferramenta não é apenas rígida o suficiente para suportar operações de corte de carga pesada, mas também equipada com uma ampla gama de velocidades de alimentação para garantir a estabilidade e a eficiência do processo de processamento. Seu projeto de orifício para o afunilamento é flexível e vários cortadores de moagem cilíndrica, cortadores de moagem circular, formação de cortadores de moagem, cortadores de fresagem de face, etc. podem ser instalados diretamente ou através de acessórios, fornecendo possibilidades, manufaturas, manufaturas, manufaturas, manufaturas, manufaturas, manufaturas, manufaturas, manufaturas, manufaturas, manufaturas, manufaturas, manufaturas ideais, fabricantes de manufaturas, manufaturas ideais, manufaturas ideais, manufaturas, manufaturas, manufaturas, manufaturas, manufaturas, manufaturas, manufaturas, manufaturas, fabricantes, manufaturas, fabricantes de planos, planos, grooves, grooves, etc. etc. motocicletas e outras indústrias.

Artesanato requintado, lançando excelente qualidade
A Hongjia CNC sabe que a alta qualidade vem da busca final de detalhes. Os principais componentes da máquina de moagem de levantamento universal X6132, como base, corpo, bancada, deslizamento, deslizamento de elevação, etc., são todos fundidos com materiais de alta resistência e envelhecimento artificial, que elimina efetivamente o estresse interno do material e garante a estabilidade e a retenção de precisão a longo prazo da ferramenta da máquina. O eixo adota rolamentos de roletes cônicos, combinados com uma estrutura de três suportes, que não apenas possui boa rigidez do sistema e forte capacidade de suporte de carga, mas também é equipado com um dispositivo de freio que consome energia, com grande torque de frenagem e desligamento rápido e confiável, fornecendo uma garantia sólida para processamento de alta pré-precisão.

Flexível e mutável, ampliando os limites de processamento
Para atender às necessidades diversificadas de processamento, o ângulo de rotação horizontal da mesa de trabalho da máquina de fresamento de elevação universal x6132 pode atingir ± 45 °. Esse design expande bastante a faixa de processamento da máquina -ferramenta. Ao mesmo tempo, a parte principal de transmissão e a parte da alimentação da mesa de trabalho adotam uma estrutura de transmissão de engrenagens, com uma ampla faixa de regulação de velocidade e mudança de velocidade conveniente e rápida, tornando o processo de processamento mais flexível e eficiente. Em termos de modo de alimentação, as direções x/y/z da máquina -ferramenta têm três modos: alimentação manual, alimentação motorizada e alimentação rápida motorizada. A velocidade de alimentação pode ser ajustada com flexibilidade de acordo com diferentes necessidades de processamento. A função de alimentação rápida permite que a peça de trabalho atinja rapidamente a posição de processamento, reduzindo bastante o tempo de não processamento e melhorando a eficiência geral do processamento.

Fabricação de precisão, vida útil prolongada
Em termos de processamento detalhado, os trilhos guia X, Y e Z da máquina de fresamento de levantamento universal X6132 foram extásonicamente extiônicos, aterrissões de precisão e raspadas, e o sistema de lubrificação forçado não apenas melhorou significativamente a precisão do processamento, mas também prolongou efetivamente o serviço da ferramenta da máquina. O dispositivo de lubrificação pode forçar a lubrificação dos parafusos de chumbo e os trilhos guia nas direções longitudinais, transversais e verticais, reduzindo efetivamente o desgaste da máquina -ferramenta e garantindo a operação eficiente e estável da máquina -ferramenta. Além disso, o sistema de refrigeração ajusta flexivelmente o fluxo de líquido de arrefecimento ajustando o bico para atender às necessidades de resfriamento sob diferentes condições de processamento, melhorando ainda mais a qualidade e a eficiência do processamento.

Design humanizado, processo de operação simplificado
O Hongjia CNC considerou totalmente a conveniência da interação humana-máquina ao projetar a máquina de moagem de elevação universal x6132. O design geral da máquina -ferramenta está em conformidade com os princípios da ergonomia, é fácil de operar e fácil de usar. O painel de controle adota um design de símbolo gráfico, que é intuitivo e fácil de entender. Até os operadores iniciantes podem dominá-lo rapidamente, o que reduz bastante a dificuldade de operação e melhora a eficiência do trabalho.

Não hesite em entrar em contato quando precisar de nós!